Продаж квартири у чудовому ELIT PARK! (№ 213-199-665)

Ціна: 42 000 $
Характеристики
| Ціна: | 42 000 $ | 
|---|---|
| № об'єкта: | 213-199-665 | 
| Кімнат: | 1 розд | 
| Поверх: | 3 / 3 | 
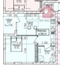
| Площа: | 41.8 / 15 / 18 м2 | 
| Санвузол: | 1 сумісний | 
| Балкон: | лоджія | 
| Додатково: | новобудова | 
Адреса: Закарпатська, Ужгородський, Сторожниця, Центральна, 5
Продаж 1-кімнатної квартири в ЖК “Еліт Парк”, с. Сторожниця
🔹 Площа квартири: 41,8 м²
🔹 Кухня-студія: 17,78 м²
🔹 Житлова кімната: 14,55 м²
🔹 Поверх: 3 із 3
🔹 Ціна: 42 000 $
✨ Сучасний житловий комплекс з продуманим плануванням та зручною локацією. Простора кухня-студія, окрема кімната, якісний будинок. Ідеально підходить для комфортного проживання або інвестиції.
📍 Локація: Сторожниця, ЖК “Еліт Парк” – тиха та затишна місцевість з гарною транспортною розв’язкою.















 p_nina2610@icloud.com
 p_nina2610@icloud.com