Продаж комерції для твого бізнесу! Ужгород. (№ 24-103-633)
Ціна: 1 800 $

Адреса: Богомольця, 18, Ужгород, Закарпатська, Новий
Характеристики
| Ціна: | 1 800 $ |
|---|---|
| № об'єкта: | 24-103-633 |
| Тип: | інше |
| Поверх: | 1 / 7 |
| Площа: | 172 м2 |
| Додатково: | окремий вхід, парковка |
Опис
Продаж комерційного приміщення по вул. Богомольця.
Приміщення в готовому ЖК, будинок здано в експлуатацію, можна одразу заходити на ремонт.
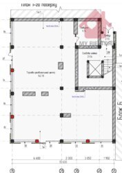
Торгова площа (open space) — 162,8 м², додатково передбачений санвузол — 9,24 м², загальна площа — близько 172 м².
Кутове розташування у спальному районі з великою кількістю паркомісць та панорамними вітринними вікнами. Приміщення має два окремі входи — з центральної дороги та з бічної сторони будинку.
Електрична потужність — 30 кВт.
Ціна нижче ринкової — 1800 $/м².







